




























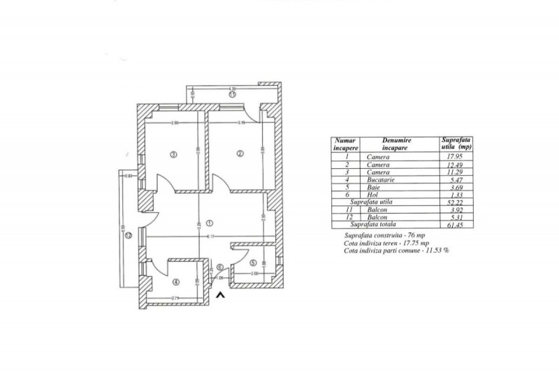
Sos. Chitila – Triumfului 58, Apartament 3 camere gata de mutat, 61 mp.
Amplasat pe strada linistita, aproape de Soseaua Chitilei, la 12 minute de mers pe jos de statia de metrou Jiului. Apartament cochet, cu suprafete vitrate mari, bine impartit, potrivit pentru un cuplu sau o familie tanara. Interior confortabil, igienizat, mobilat si utilat complet, cu spatii de depozitare. Planul apartamentului include bucataria inchisa, baie cu cabina de dus noua, doua balcoane spatioase, unul cu iesire din bucatarie si living, celalat cu iesire din dormitor, cu debara amenajata cu rafturi. Cheltuieli de intretinere minime.
Condiții de închiriere:
• Contract pe minim 12 luni
• Fumatul nu este permis în apartament
• Avans: 1 lună chirie + 1 luna garanție
• Comision 0% pentru chirias